Der Bebauungsplan „K 77 / Lämmermengesfeld“ wurde in der Sitzung des Ortsgemeinderates
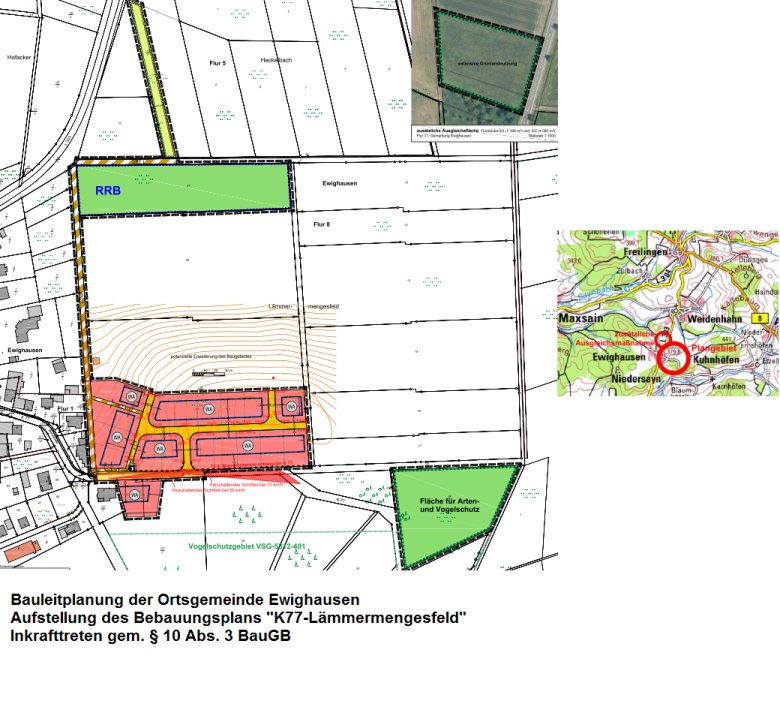
Ewighausen am 11.12.2024 gemäß § 10 Abs. 1 des Baugesetzbuchs (BauGB) als Satzung beschlossen. Dieser Beschluss wird hiermit gemäß § 10 Abs. 3 BauGB ortsüblich bekannt gemacht. Der Geltungsbereich des Bebauungsplans „K 77 / Lämmermengesfeld“ schließt östlich an die Ortslage Ewighausen an. Der Geltungsbereich (Flurstücke 121/16 tw. und 122/1 in Flur 1, Flurstücke 6 tw. und 10/2 tw. in Flur 5, sowie in Flur 8 die Flurstücke 8, 9 tw.,18/1 tw., 19/1, 19/2 (tlw.), 21 und 27/2 tw., 34 und die Flurstücke 5/2 und 6/2 in Flur 11) kann dem angefügten Plan entnommen werden.
Jedermann kann den Bebauungsplan „K 77 / Lämmermengesfeld““, bestehend aus Planzeichnung und Textfestsetzungen, sowie und die beigefügte Begründung und den Umweltbericht einsehen und über deren Inhalt Auskunft verlangen.
Die Unterlagen werden hierzu in der Verbandsgemeindeverwaltung Selters, Am Saynbach 5-7, in Zimmer 110, montags und dienstags von 8.00 Uhr - 16.00 Uhr, mittwochs von 8.00 Uhr bis 12.00 Uhr, donnerstags von 8.00 Uhr bis 18.00 Uhr und freitags von 8.00 Uhr bis 12.00 Uhr, bereitgehalten.
DIN-Normen und Unterlagen, auf welche in den Festsetzungen verwiesen wird, können innerhalb der Geschäftszeiten in der Verbandsgemeindeverwaltung Selters, Am Saynbach 5-7, 56242 Selters eingesehen werden.
Mit dieser Bekanntmachung tritt der Bebauungsplan „K 77 / Lämmermengesfeld“ der Ortsgemeinde Ewighausen in Kraft.
Diese Bekanntmachung tritt an die Stelle der sonst für Satzungen vorgeschriebenen Veröffentlichung.
Es wird auf folgendes hingewiesen:
a) Gemäß § 215 Abs. 1 BauGB werden
- eine nach § 214 Abs. 1 Satz 1 Nr. 1 bis 3 BauGB beachtliche Verletzung der dort bezeichneten Verfahrens- und Formvorschriften,
- eine unter Berücksichtigung des § 214 Abs. 2 BauGB beachtliche Verletzung der Vorschriften über das Verhältnis des Bebauungsplans und des Flächennutzungsplans und
- nach § 214 Abs. 3 Satz 2 BauGB beachtliche Mängel des Abwägungsvorgangs,
unbeachtlich, wenn sie nicht innerhalb eines Jahres seit dieser Bekanntmachung des Bebauungsplans schriftlich gegenüber der Gemeinde unter Darlegung des die Verletzung begründenden Sachverhalts geltend gemacht worden sind. Das Vorstehende gilt entsprechend, wenn Fehler nach § 214 Abs. 2a BauGB beachtlich sind.
b) Auf die Vorschriften des § 44 Abs. 3 Satz 1 und 2 sowie des Absatzes 4 BauGB über die fristgerechte Geltendmachung etwaiger Entschädigungsansprüche bei Eingriffen dieses Bebauungsplans in eine bisher zulässige Nutzung und über das Erlöschen solcher Ansprüche wird hingewiesen.
c) Es wird weiterhin darauf hingewiesen, dass Satzungen gemäß § 24 Abs. 6 der Gemeindeordnung für Rheinland-Pfalz (GemO), die unter Verletzung von Verfahrens- und Formvorschriften dieses Gesetzes oder auf Grund dieses Gesetzes zustande gekommen sind, ein Jahr nach der Bekanntmachung als von Anfang an gültig zustande gekommen gelten. Dies gilt nicht, wenn
- die Bestimmungen über die Öffentlichkeit der Sitzung, die Genehmigung, die Ausfertigung oder die Bekanntmachung der Satzung verletzt worden sind, oder
- vor Ablauf der in Satz 1 genannten Frist die Aufsichtsbehörde den Beschluss beanstandet oder jemand die Verletzung der Verfahrens- und Formvorschriften gegenüber der Gemeindeverwaltung unter Bezeichnung des Sachverhalts, der die Verletzung begründen soll, schriftlich geltend gemacht hat.
Hat jemand eine Verletzung nach vorstehender Nr. 2 geltend gemacht, so kann auch nach Ablauf der o.g. Frist (ein Jahr) jedermann diese Verletzung geltend machen.
Der Inhalt dieser Bekanntmachung sowie die vorstehend aufgeführten Bebauungsplan-Unterlagen werden zusätzlich im Internet unter https://www.selters-ww.de/bebauungsplaene/ eingestellt.
Selters, den 16.01.2026
(DS) Melanie Mathis, Ortsbürgermeisterin




